Familie Rainer heißt Sie herzlichst Willkommen in einer der schönsten Urlaubsregion zum Skifahren, Biken oder Wandern! Ob Sie nun erholsame Urlaubstage mit der Familie oder doch lieber einen actionreichen Aktivurlaub mit Freunden verbringen möchten - unsere zwei Ferienwohnungen Vogelhaus und Kunterbunt in Leogang bietet Ihnen komfortable Wohn- und Schlafräumlichkeiten für bis zu maximal 5 Personen im Appartement Vogelhaus oder maximal 6 Personen im Appartement Kunterbunt. Überzeugen Sie sich am Besten gleich selbst und erleben Sie erholsame Urlaubsstunden in den Salzburger Bergen.
- Saalfelden Leogang Card
Gastgeberinformation
Ausstattung
-
Einrichtungen Betrieb
- Haustiere nicht erlaubt
- Internetbenutzung gebührenfrei
- Nichtraucherhaus
- Sonnenterrasse
- WiFi
-
Lage
- Direkt am Radweg
- Direkt an d. Ski-/ Wander-/ Bushaltestelle
- Zentrale Lage
-
Fremdsprachen
- Deutsch
- Englisch
-
Tagung / Kongress
- Flat-Screen
-
Links
-
Konditionen
Wir freuen uns auf Ihre direkte Kontaktaufnahme für Anfragen und Buchungen ab 5 Nächten. Weitere Informationen & Details finden Sie unter: www.ferienwohnung-rainer.at email: rainersieg@gmail.com
Kontakt & Anreise
Appartement Kunterbunt
5771 Leogang AT
Anreise
Appartement am Anreisetag ab 16:00 Uhr bezugsfertig. Wir bitten Sie höflich uns eine Stunde vor Ankunft telefonisch zu kontaktieren um Sie persönlich zu empfangen. Tel-Nr.: Rainer Siegfried - 0043 664 967 967 3
Fotos
Appartements & Preise
Zimmer-Übersicht
-
ab 120,00 €
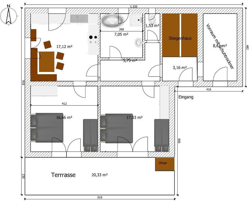
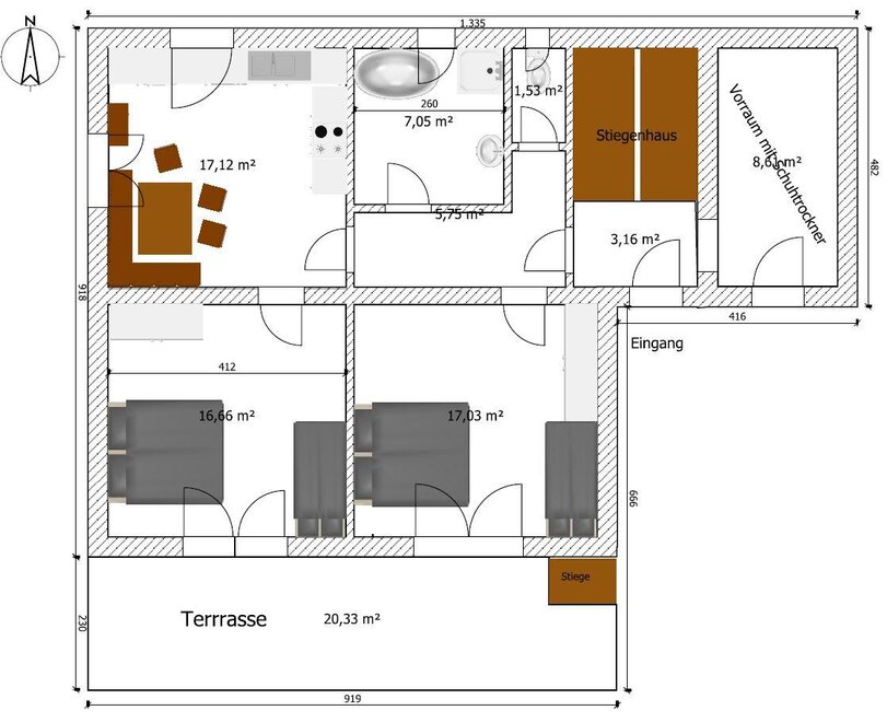
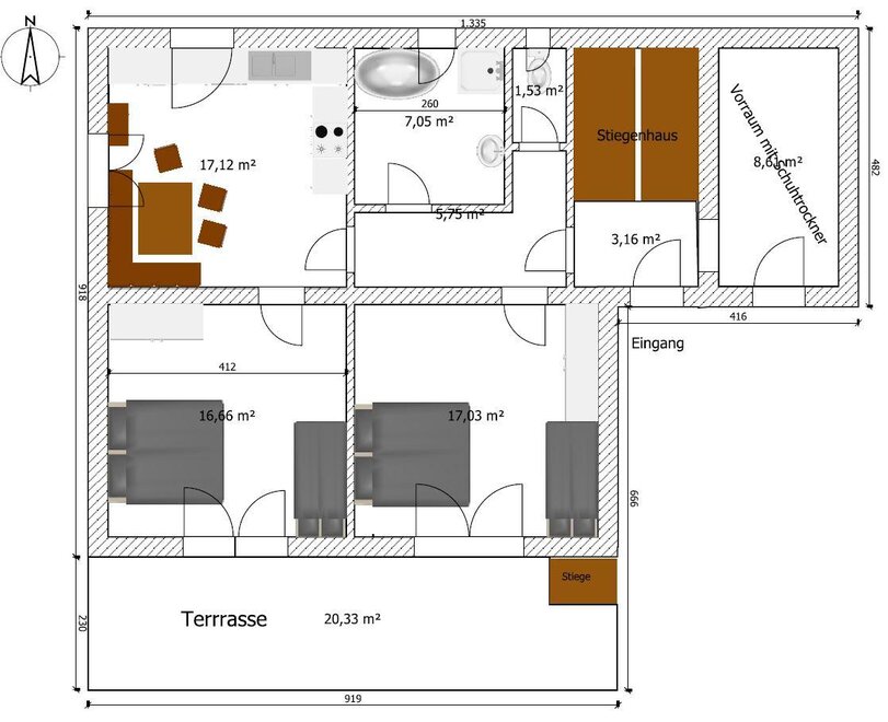
Größe 70 m² Belegung 1 - 6 Erwachsene , 0 - 5 Kinder Zimmer 5 Schlafzimmer 2 Zimmerdetails
Ausgestattet mit 2 attraktiven Doppelbettzimmern, einer modern eingerichteten Küche mit gemütlicher Sitzecke, einem luxuriösen Wohnzimmer (das auch als Schlafraum genutzt werden kann), einem WC und einem Badezimmer, das zum Entspannen einlädt, lässt unsere Ferienwohnung in Leogang keine Wünsche offen.
Zusätzlich stehen Ihnen:
- Internet (W-Lan)
- Flat Screen mit Digital TV in Wohn- und Schlafräumen
- Warmluft Schuhtrockner
- Balkon
- Holzkohlegriller
- 1 Waschmaschine
- Parkmöglichkeiten für Ihren PKW
Ausstattung Zimmer/Appartement
Geschirrspülmaschine, Vorraum, Fernseher, Abstellraum, Handtücher vorhanden, Familienzimmer / app., WiFi, Küche, Dunstabzug, Wohnküche, Küchengeräte, Toilettenartikel, Schrank, Küchenzeile, Bettwäsche vorhanden, Zentralheizung, Gefriermöglichkeit, Separate Schlafzimmer: 0, Kochmöglichkeiten, Gefrierfach, Mikrowelle, Nichtraucher Zimmer/App./Whg., Heizung, Geschirrspülbecken, Wasserkocher, Radio, Elektroherd, Terrasse, Kaffee-Maschine, Haustiere nicht erlaubt, Haarföhn, Separate Küche, Kabelfernsehen, Kühlschrank, Backofen
Sanitäre Ausstattung
Dusche, Bad, Badewanne, Separates WC, Fließendes Kalt- und Warmwasser
Lage/Blick Zimmer/Appartement
Erdgeschoß / Parterre
Betten Verteilung
Anzahl Einzelbett/en: 2, Anzahl Doppelbett/en: 2
verfügbarverfügbar, keine Anreisenur Abreisenicht verfügbar
-
Keine versteckten Kosten
-
Persönliche Beratung
-
Sicher mit SSL-Zertifikat
-
Unabhängige Bewertungen
Mo-Fr 8:00 bis 12:00 und 13:00 bis 17:00 Uhr